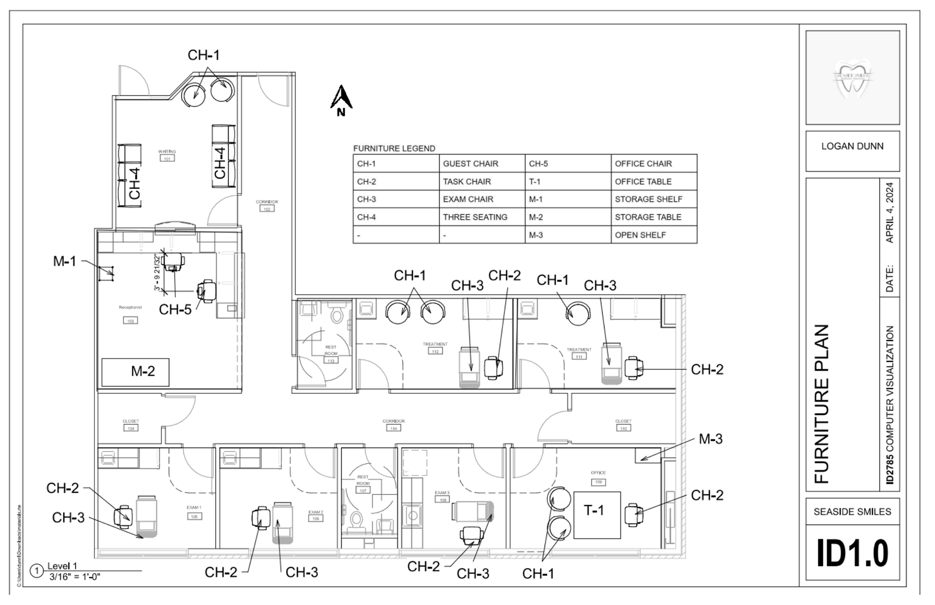
For this assignment, we took a floor plan of a healthcare space and placed specifications for the furniture, fixtures, and equipment. Here are a few examples.